The Starting Point – “Before” Pictures

After renovating a typical Philadelphia row home, we wanted something a little different. After months of looking at places, we stumbled upon Mountain Street.

Almost all Philadelphia row homes fall between 14′ to 22’ wide—with many at 16’ or 18’. The PhillyRowHomeReno house was  18” wide with 3 floors (and a basement)—what’s officially referred to as a Federal or Georgian Town House.  Here’s a picture from the City of Philadelphia’s Rowhouse Manual.

Federal or Georgian Town House

After months of looking at places, we stumbled upon Mountain Street. Lots of items to check off from the “pros” list in the house-hunt with some interesting challenges to tackle.

  • It’s 32’ wide, double most other houses on the block, and 50’ deep, with 2 floors (and no basement).  Check, open floor concept.
  • It has a garage with a curb cut—a precious commodity in the city. Check, parking. Check again, for parking.
  • The property occupies the full lot with no outdoor space. There’s only one way out – and it’s up!
  • There’s no offset or interior garden in the middle of the space to allow for more light into the main volume, something that’s typical for medium to large row homes. We’ll need to let the sunshine in somehow.

This space has tons of potential.

It was a live/work space: The First Floor was used as a workshop and The Second Floor was a one-bedroom home.

Here’s the starting point.


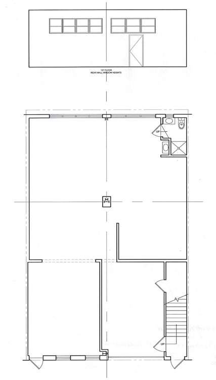
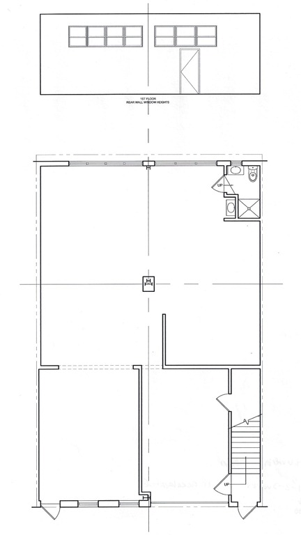
First Floor – The WORK Floor

First Floor

  • Garage at the front right with stairs up to the second floor.
  • A small bathroom in the rear right.
  • A great big open area with high windows in the rear (as shows in the rear elevation, up above).
  • About 10’ high ceilings.

The Garage


Behind the Garage (a bunk bed stage with a view into the garage?)


Left Side of the House


Rear Left with Small Bathroom at Rear Right Visible


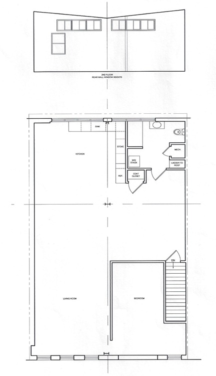
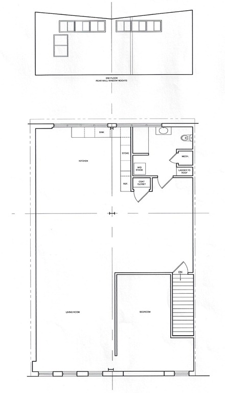
Second Floor – The LIVE Floor

Second Floor

  • One bedroom and one bathroom.
  • A great big open area for the entry into the space, kitchen, dining and living rooms.
  • An open loft-like bedroom, off the living room.
  • High south-facing windows in the rear. Large north-facing windows in the front.
  • V-shaped ceiling structure with 10’ to 12’ ceilings.

The entry with a view into the Dining Room and Living Room

The Kitchen

The Kitchen, Dining Room and Living Room

The Living Room and Bedroom (behind the wall)

The Bedroom with Closet Space (behind the wall)


The Bathroom


On our wish-list for the renovation:

  • A Painting Studio & Home Office, for J
  • A Guest Bedroom
  • Garage with Storage and a Dog-Washing Area
  • A Spacious Entry
  • Storage Space, in lieu of a Basement
  • Open Concept Kitchen, Living Room and Dining Room
  • A Media Room
  • A Home Office, for D
  • Master Bedroom & Bathroom
  • Outdoor space

Stay tuned to see what we’re planning to do with the space to appreciate the “pros”, tackle the challenges and hit the wish-list items.

-D

One thought on “The Starting Point – “Before” Pictures

Leave a comment